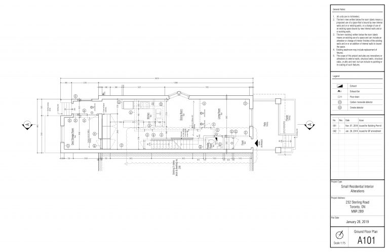
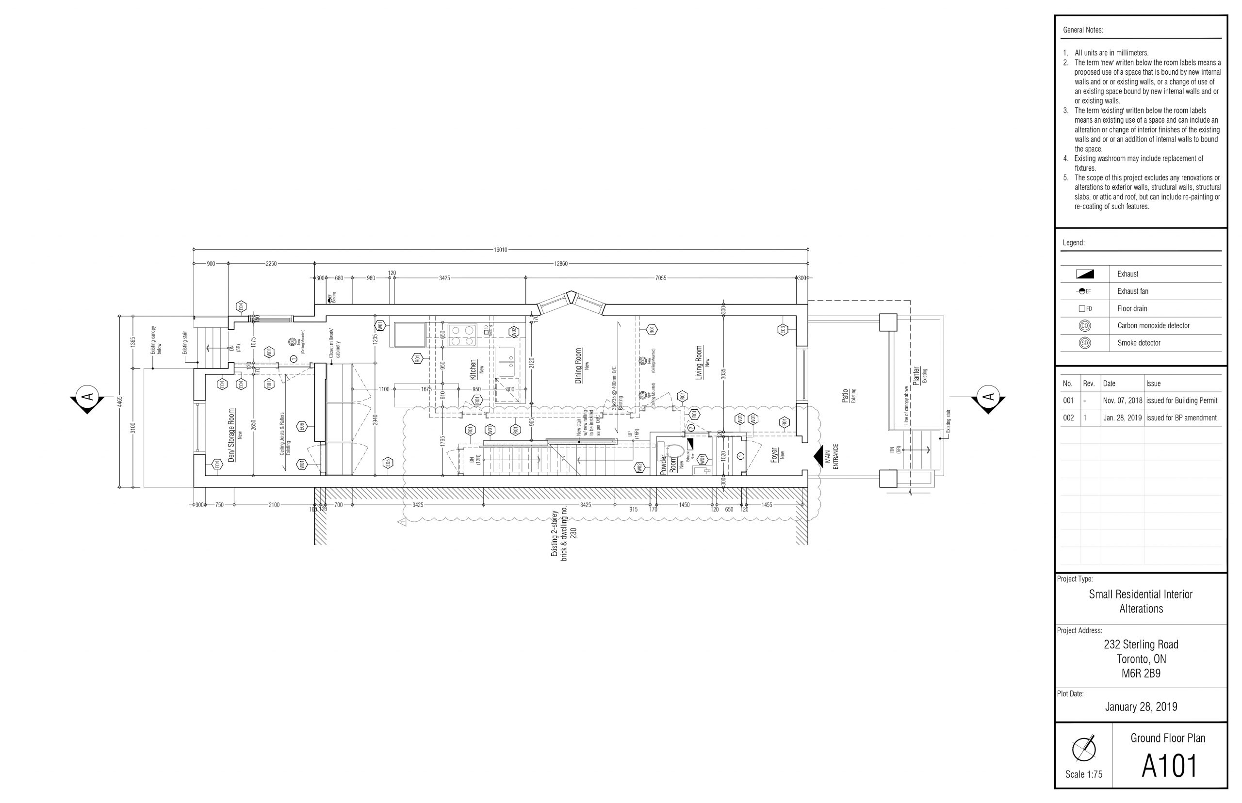
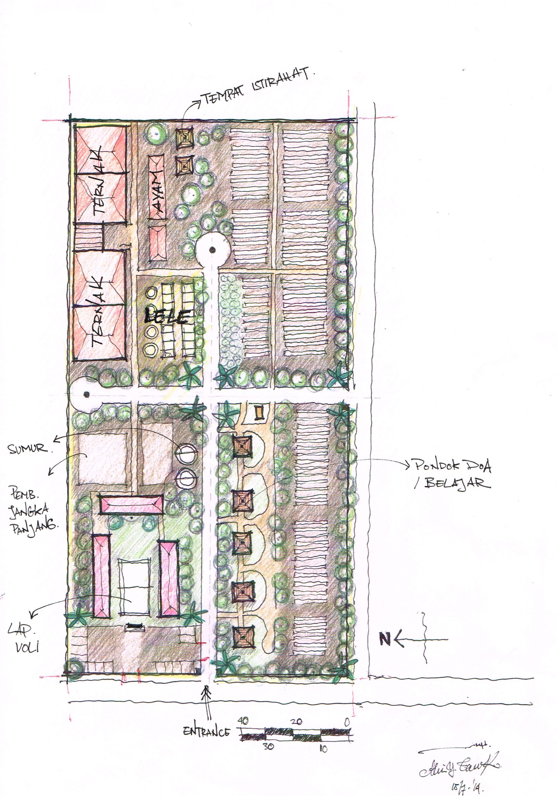
Design & Drafting Work

Check out our design & drafting work: 2Ds, 3Ds, computer drawings,
hand sketches, building permits, etc.